空气输送斜槽是一种用于输送干燥粉状物料的气力输送设备。在水泥工业中空气输送斜槽常用于输送水泥和生料粉。斜槽在输送物料中因为、没有转动部件,易于维护,密封性好,无噪音,操作安全可靠,耗电少,改变输送方向方便,并能多点喂料和多点卸料而得到广泛的应用。斜槽的主要构件是透气层,采用PETS-6(涤纶)型合成纤维织物,是一种新型透气型,它具有耐高温(可达150℃),耐腐蚀、耐磨损、吸湿性低、重量轻、表面平整、使用寿命长等优点。
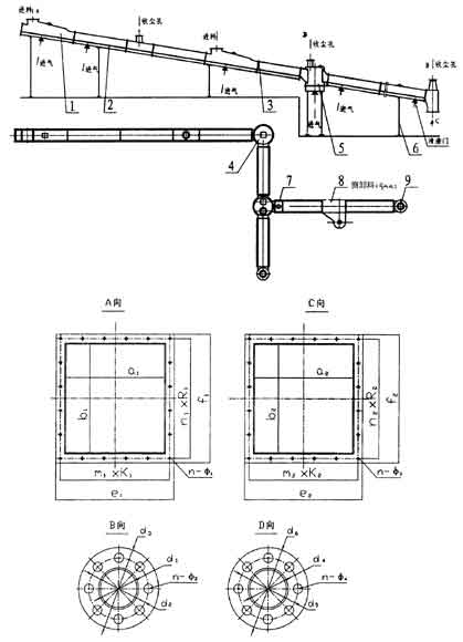
外形尺寸:
技术性能:
输送物料:含水量≤1%,温度≤150℃的干燥的粉状物料
输送能力:输送水泥及生料成品时的输送能力如下表所列:
|
规格 |
XZ200 |
XZ250 |
XZ315 |
XZ400 |
XZ500 |
XZ630 |
XZ800 |
|
槽体宽度 |
m m |
200 |
250 |
315 |
400 |
500 |
630 |
800 |
|
输 送 能 力 |
a=4° |
水泥 |
T/h |
22 |
40 |
70 |
130 |
220 |
320 |
400 |
|
生料 |
16 |
30 |
55 |
100 |
165 |
245 |
310 |
|
a=6° |
水泥 |
40 |
65 |
120 |
250 |
400 |
610 |
765 |
|
生料 |
30 |
55 |
90 |
185 |
300 |
455 |
565 |
|
a=8° |
水泥 |
50 |
80 |
140 |
300 |
470 |
720 |
900 |
|
生料 |
35 |
65 |
110 |
225 |
355 |
540 |
670 |
|
a=10° |
水泥 |
60 |
100 |
170 |
380 |
570 |
900 |
1080 |
|
生料 |
45 |
80 |
140 |
285 |
425 |
670 |
800 |
|
a=12° |
水泥 |
70 |
120 |
205 |
455 |
685 |
1080 |
1295 |
|
生料 |
50 |
95 |
165 |
340 |
510 |
805 |
960 |
|
槽体节长 |
标准节 |
m m |
2000 |
|
非标准节 |
m m |
250 |
|
需要风压 |
KPa |
4-5.5 |
|
需要风量 |
m3/m2.min |
1.5-2 |
|
透 气 层 |
材质 |
|
合成纤维 |
|
厚度 |
m m |
4-6 |
|
耐温 |
℃ |
150 |
|
径向断裂强度 |
N/cm宽 |
4700 |
|
阻力 |
Pa |
800-1200(在2m3/m2.min条件下) |
|
代号
|
a1 |
b1 |
e1 |
f1 |
m1×R1 |
n1×R1 |
n-Φ1 |
|
型号 |
Ⅰ型 |
Ⅱ型 |
Ⅰ型 |
Ⅱ型 |
Ⅰ型 |
Ⅱ型 |
Ⅰ型 |
Ⅱ型 |
Ⅰ型 |
Ⅱ型 |
Ⅰ型 |
Ⅱ型 |
Ⅰ型 |
Ⅱ型 |
|
XZ200 |
120 |
200 |
120 |
150 |
210 |
280 |
210 |
230 |
2×86 |
4×63 |
2×86 |
3×66 |
8-Φ14.5 |
14-Φ12 |
|
XZ250 |
150 |
250 |
150 |
200 |
240 |
330 |
240 |
280 |
3×70 |
4×70 |
3×70 |
3×83 |
12-Φ14.5 |
14-Φ12 |
|
XZ315 |
150 |
250 |
150 |
250 |
240 |
330 |
240 |
330 |
3×70 |
4×75 |
3×70 |
4×75 |
12-Φ14.5 |
16-Φ12 |
|
XZ400 |
150 |
315 |
150 |
315 |
240 |
395 |
240 |
395 |
3×70 |
5×73 |
3×70 |
5×73 |
12-Φ14.5 |
20-Φ12 |
|
XZ500 |
200 |
400 |
200 |
400 |
290 |
480 |
290 |
480 |
3×88 |
6×75 |
3×88 |
6×75 |
12-Φ14.5 |
24-Φ12 |
|
XZ630 |
200 |
500 |
200 |
500 |
290 |
580 |
290 |
580 |
3×88 |
7×79 |
3×88 |
7×79 |
12-Φ14.5 |
28-Φ12 |
|
代号 |
a2 |
b2 |
e2 |
f2 |
m2 × R2 |
n2 × R2 |
N - Φ3 |
d1 |
d2 |
d3 |
n-Φ2 |
d4 |
d5 |
d6 |
n- Φ 4 |
|
型号 |
|
XZ200 |
206 |
206 |
286 |
286 |
3 × 82 |
3 × 82 |
14 - Φ12 |
108 |
152 |
188 |
4 - Φ 12 |
Φ130 |
Φ160 |
Φ190 |
6 - Φ 12 |
|
XZ250 |
256 |
256 |
336 |
336 |
4 × 75 |
4 × 75 |
16 - Φ12 |
108 |
152 |
188 |
4 - Φ 12 |
Φ135 |
Φ170 |
Φ205 |
6 - Φ 12 |
|
XZ315 |
321 |
321 |
401 |
401 |
5 × 73 |
5 × 73 |
20 - Φ12 |
260 |
225 |
260 |
6 - Φ 12 |
Φ190 |
Φ225 |
Φ260 |
8 - Φ 12 |
|
XZ400 |
406 |
406 |
486 |
486 |
6×75 |
6×75 |
24-Φ12 |
315 |
280 |
315 |
8-Φ12 |
Φ245 |
Φ280 |
Φ315 |
8-Φ12 |
|
XZ500 |
506 |
506 |
586 |
586 |
7×79 |
7×79 |
28-Φ12 |
340 |
305 |
340 |
8-Φ12 |
Φ270 |
Φ305 |
Φ340 |
8-Φ12 |
|
XZ630 |
638 |
638 |
738 |
738 |
8×86 |
8×86 |
32-Φ14.5 |
405 |
370 |
405 |
12-Φ12 |
Φ355 |
Φ395 |
Φ435 |
12-Φ12 |